SL-Federungssystem
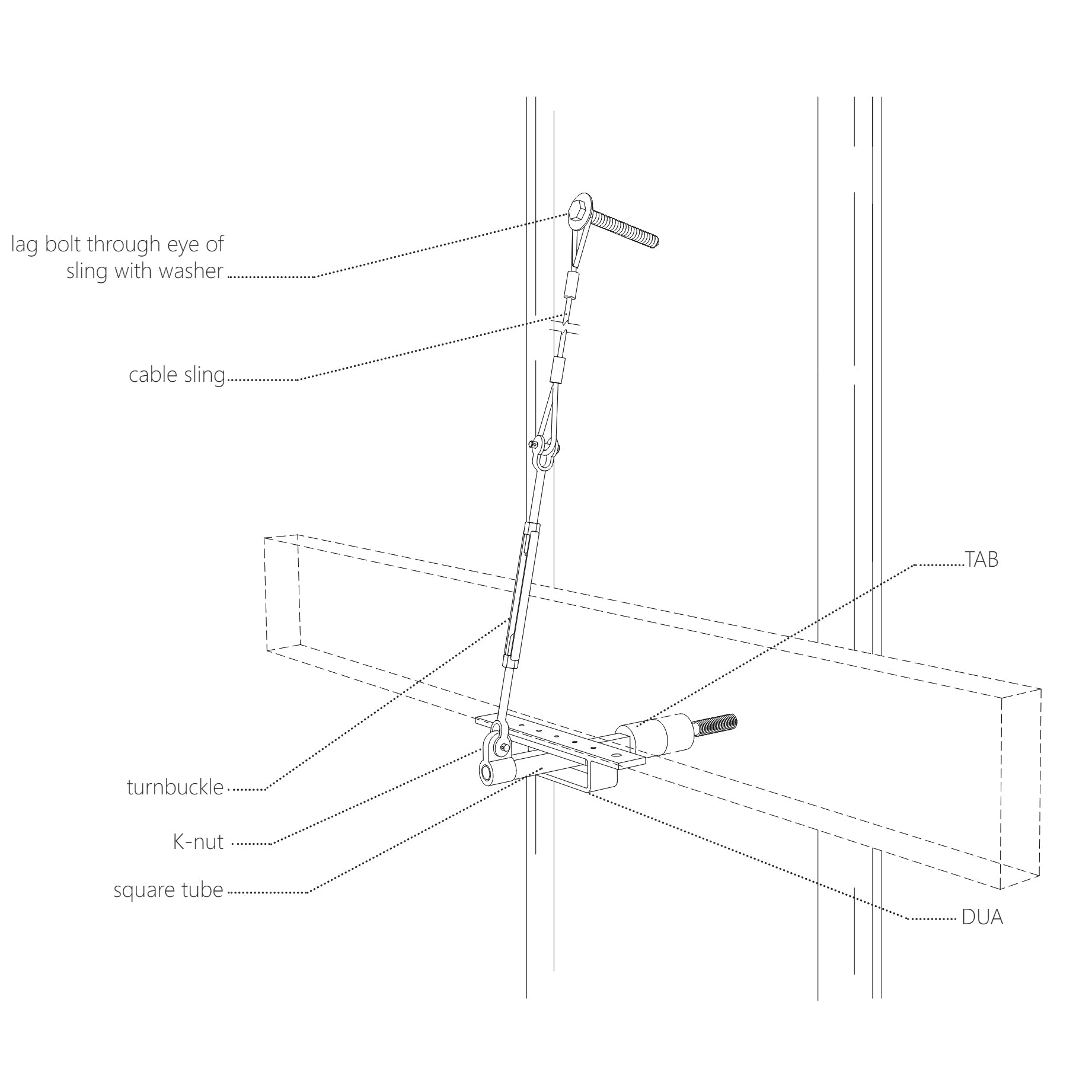
Hierbei handelt es sich um einen fünfteiligen Bausatz, der als Backup das in unserer Branche ebenfalls bekannte TAB-Aufhängungssystem bildet. Diese Baugruppe bildet eine Einheit, um sicherzustellen, dass der Träger so lange wie möglich maximale strukturelle Integrität aufweist, und ist Teil unserer Standardverbindung.
Das Kit enthält:
- 3/4" Spannschloss
- 3' Aufhängungskabel
- K-Mutter
- 1" x 8" verzinkte Zugschraube
- 1" Unterlegscheibe
Diese Komponenten werden als Bausatz verkauft, da sie zusammen verwendet werden. Die K-Mutter wird auf das Ende eines Standard-TAB geschraubt und bildet einen Befestigungspunkt für das Spannschloss. Das Spannschloss verbindet die K-Mutter mit dem Aufhängungskabel. Das Aufhängungskabel wird mit der verzinkten Zugschraube und der Unterlegscheibe am Baum befestigt.
*Nach Abschluss Ihres Kaufs erhalten Sie eine Installationsanleitung. Um darauf zuzugreifen, lesen Sie bitte den „Bestellhinweis“ in Ihrer Bestätigungs-E-Mail.
Sehen Sie sich dieses Anleitungsvideo zur Installation unseres SL-Federungssystems an:























