Methow
~Aktualisiert im Jahr 2021~
Mit seinem Einzelbaum-Design, einem Stockwerk und dem Zugang über eine Schiffsleiter ist das Methow ein typisches Baumhaus. Dieser Build ist eine gute Herausforderung, ohne übermäßig komplex zu sein.
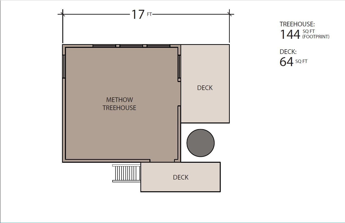
Der 130 Quadratmeter große Innenraum bietet Platz für ein Bett und eine kleine Sitzecke und die 64 Quadratmeter große Terrasse ist der perfekte Ort, um die Aussicht auf die Umgebung zu genießen. Die Plattform befindet sich etwa 9 Fuß über dem Boden und wird wie die Hauptstruktur von einem einzelnen Baum und Pfosten getragen. Bretter- und Lattenverkleidungen bedecken die Fassade und sorgen für ein klassisches Aussehen.
Unsere Designs sollen an Ihre Bäume und Ihren Lebensstil angepasst werden: Wir ermutigen Sie, es zu Ihrem eigenen zu machen! Der Baumhausbau ist ein organischer Prozess. Bleiben Sie flexibel, werden Sie kreativ und haben Sie Spaß – auch (oder gerade) wenn Sie mitten in den kopfkratzenden Momenten der Baumhaus-Fehlerbehebung stecken. Zu den Bäumen!
ALLEN PLÄNEN LIEGEN DIE BAUMHAUS-ANLEITUNG!
Wir bieten ein Hardware-Kit mit der für diese Plattform benötigten individuellen Baumhaus-Hardware an.
Bitte nehmen Sie sich einen Moment Zeit, um etwas mehr darüber zu lesen, was Sie hier erwartet.
Wohnen Sie außerhalb der USA und möchten den Methow Treehouse Plan bestellen?
Wir freuen uns, unseren internationalen Kunden eine digitale Downloadversion dieses Plans (einschließlich einer Kopie der Bedienungsanleitung!) anbieten zu können. Klicken Sie hier, um zu bestellen.
Wenn Sie in den USA leben, empfehlen wir Ihnen dennoch, die gedruckte Ausgabe zu bestellen. (Spoiler: Zum gedruckten Exemplar gibt es ein kostenloses Geschenk!) Nennen Sie uns altmodisch, aber wir mögen ein gutes gedrucktes Exemplar.






















